Z-Hub
| Wanneer: | 2025 |
| Status: | planning |
| Programma: | werken |
Aan de Zichtenburglaan in Den Haag heeft DAVL Studio een ontwerp gemaakt voor een dynamische, functionele werkomgeving.
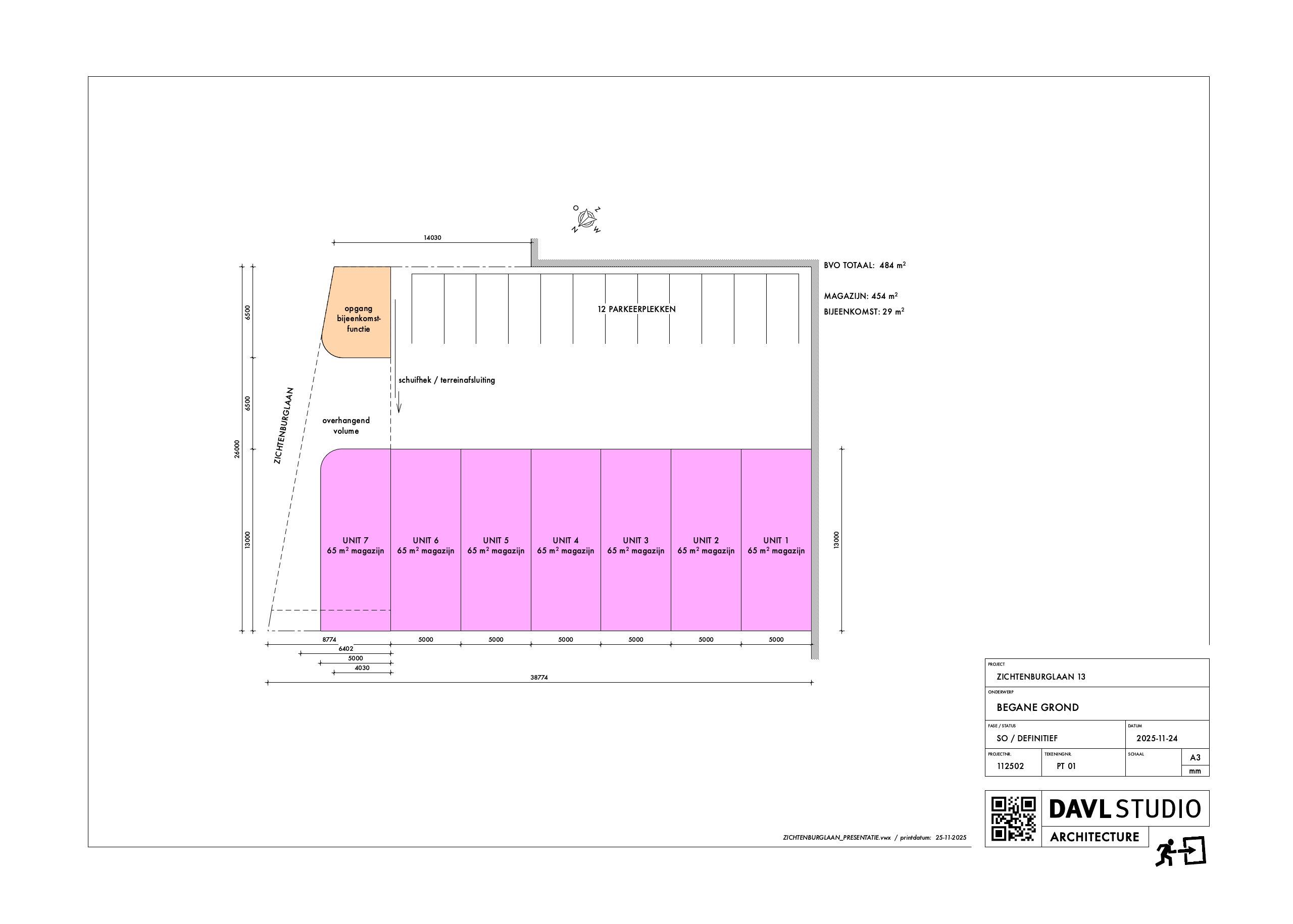
In dit robuuste en moderne bedrijfsgebouw is ruimte voor zeven bedrijfsunits.
Iedere unit bestaat uit:
65 m2 magazijn
100 m2 bedrijfsruimte
De units liggen aan een binnenterrein dat afgesloten kan worden door middel van een schuifhek. Er komen 12 parkeerplaatsen op het binnenterrein. De Haagse parkeernorm schrijft 15 plaatsen voor, dus er moeten 3 parkeerplaatsen komen in de openbare ruimte of op een andere manier worden gecompenseerd.
De units hebben aan de achterzijde een private buitenruimte op de eerste verdieping.
Uniek voor een bedrijfsgebouw is de 175 m2 ruimte die op meerdere manieren gebruikt kan worden, bijvoorbeeld als bijeenkomstfunctie of kantoor.
De architectuur van het gebouw is functioneel en duurzaam. De robuuste uitstraling, gerealiseerd door de combinatie van baksteen en bamboebekleding, creëert een professioneel en uitnodigend gebouw dat de tand des tijds doorstaat.