| Wanneer: | 2006 |
| Status: | opgeleverd |
| Cliënt: | KJD Bouwpartners BV |
| Programma: | Woningen |
De ‘Vondelhof’ bevindt zich in het hart van Den Haag te midden van historische bebouwing, dat gedeeltelijk onder Beschermd Stadsgezicht valt. De stadswoningen geven aan deze context een eigentijds functionalistisch accent. Door de collectieve buitenruimte wordt er een intieme en veilige stadsruimte gecreëerd die karakteristiek is voor de “hofjestraditie”.
De hoofddraagconstructie bestaat uit massief houten elementen van Lenotec (kruislaaghout). Deze prefab-elementen, geproduceerd in Duitsland, bieden het voordeel van snelle ruwbouw binnen een beperkte bouwstelling op een binnenstedelijk kavel.
De stedenbouwkundige randvoorwaarden leidden tot een verschijningsvorm met grote overstekken, die op efficiënte en kostenbesparende wijze met kruislaaghout konden worden gerealiseerd.
Hout overheerst in dit complex. Uit de keuze voor dit materiaal in de hoofddraagconstructie volgde als consequentie ook een houten gevel (western red ceder) en houten ramen, deuren en kozijnen (iroko), allemaal onbewerkt om de natuurlijke uitstraling van de woningen te accentueren.
Daar waar privacy van de bewoners en omwonende gewenst was zijn de gevels voorzien van houten lamellen die de achterliggende openingen camoufleren. Op de terugwijkende gevels, waar privacy in beide richtingen was gewaarborgd, hebben de woningen een open karakter door de gevelvullende puien, die tevens toegang bieden tot de verschillende buitenruimtes.
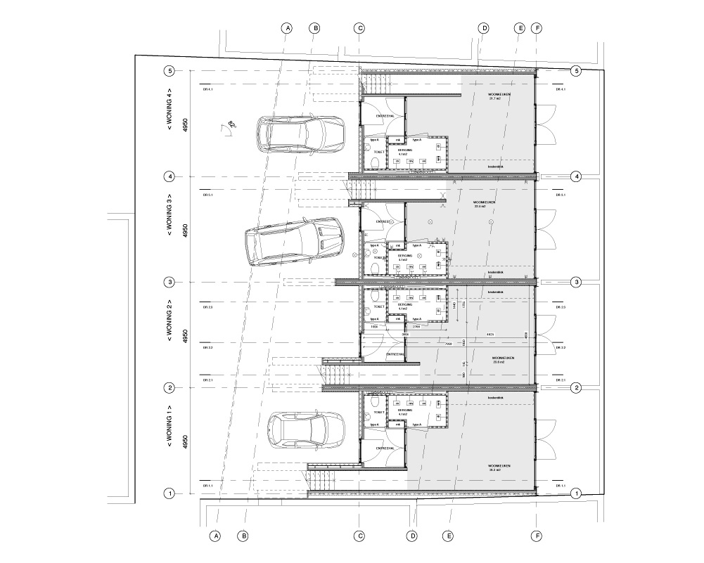
Elke woning beschikt over een patiotuin op de parterre, een groot dakterras op de eerste verdieping en aan de andere zijde een balkon op de tweede verdieping. Op de parterre bevinden zich een ruime leefkeuken, een berging en een toilet. Op de eerste etage, die met een open trap toegankelijk is gemaakt, is de woonkamer. Met dezelfde verbinding is de tweede verdieping gerealiseerd waar zich twee slaapkamers en een badkamer bevinden.