menu
Projecten
Nieuws
Over ons
Contact
ZOEK
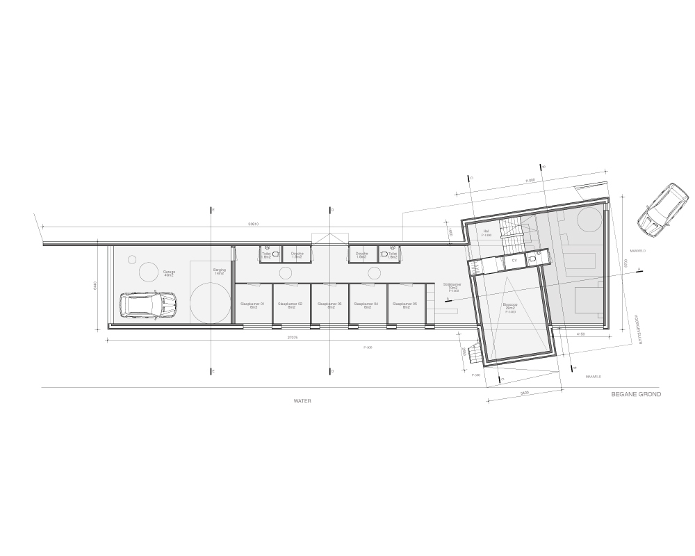
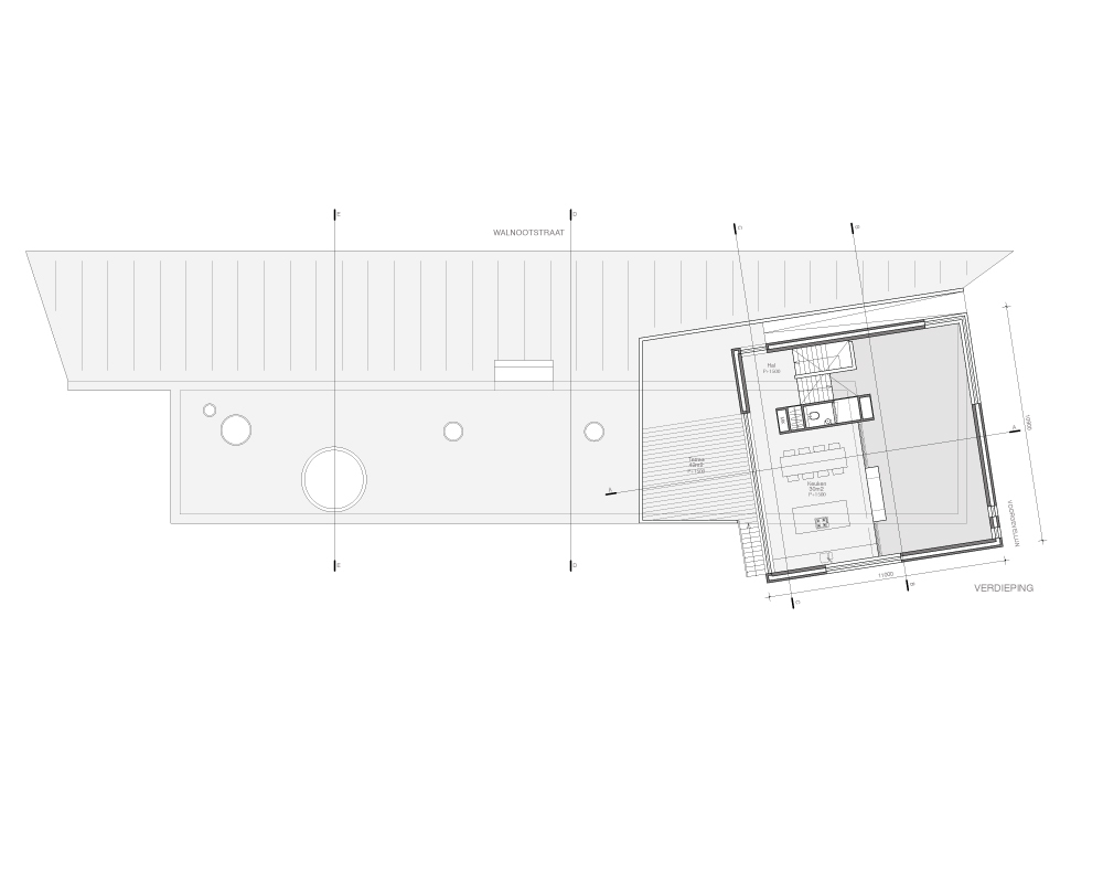
VILLA DEN HAAG
Wanneer:
2014
Status:
on hold
Cliënt:
J. Mahes
Locatie:
Den Haag