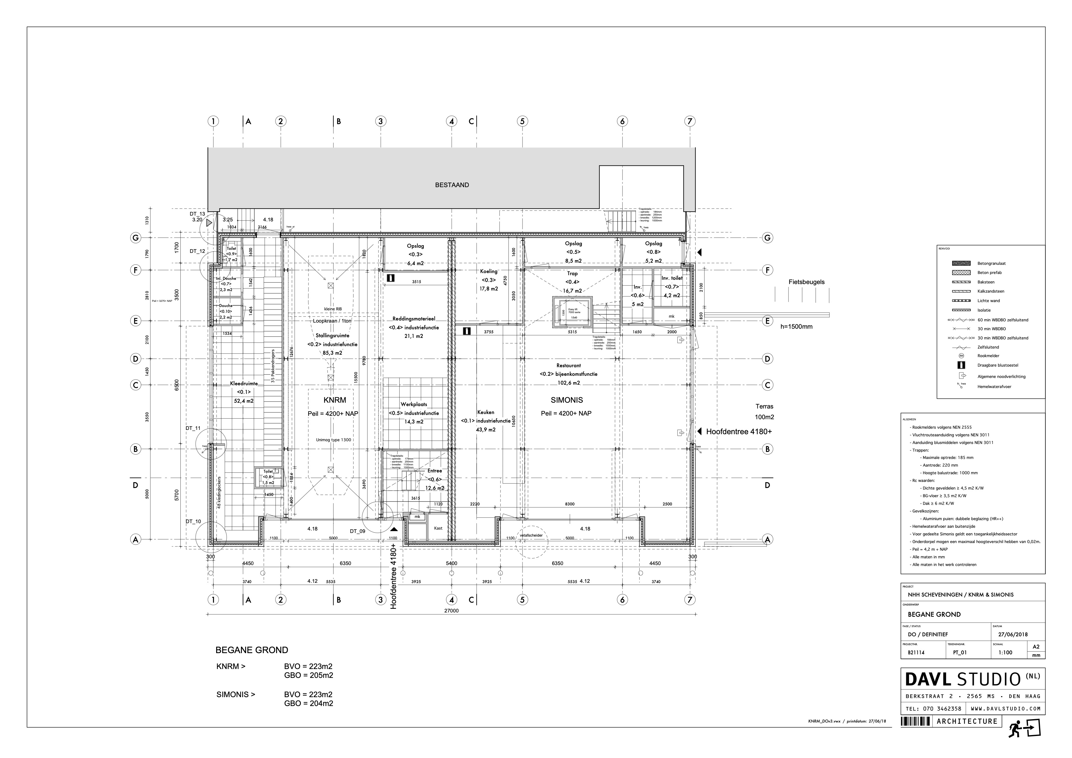
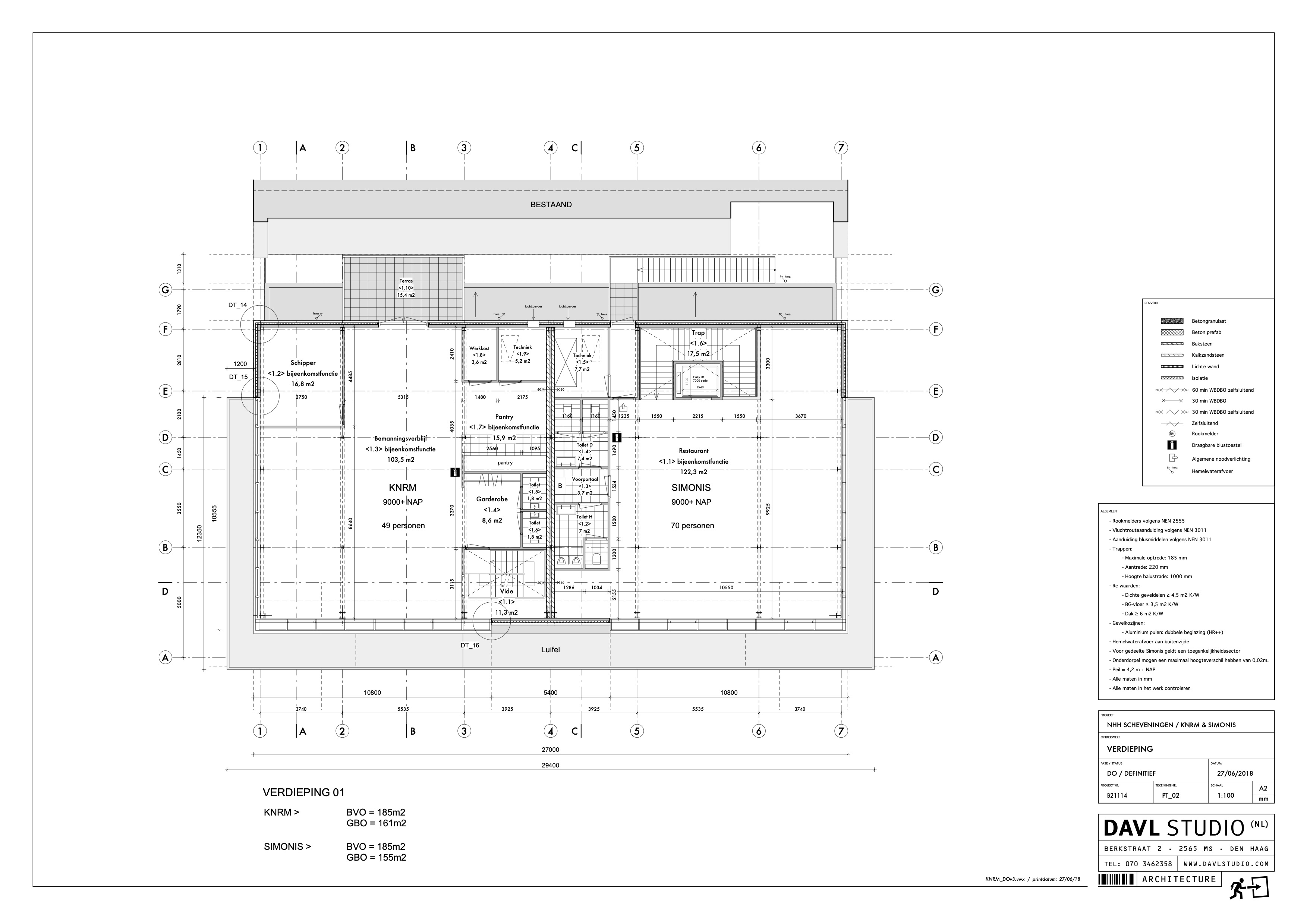
KNRM - SIMONIS

Wanneer: 2018
Status: opgeleverd
Cliënt: KNRM - SIMONIS
Locatie: Scheveningen
In opdracht van Volker Wessels Vastgoed heeft DAVL Studio het ontwerp gemaakt voor de huisvesting van de KNRM en SIMONIS.